32 Manor Road, Saltford, Bristol, Bath and North East Somerset BS31 3DN
For sale by auction
25th March 2026
Guide Price £375,000+++ (plus fees)
Price £375,000+++
In need of repair and improvement in a very popular location the property offers great scope for extension (subject to necessary planning consents). For sale by auction with City and Rural Property Auctions on 25th March 2026.
• Semi-detached, 3 bedroom house
• Opportunity to renovate into a fine family home
• Popular location
Property Description
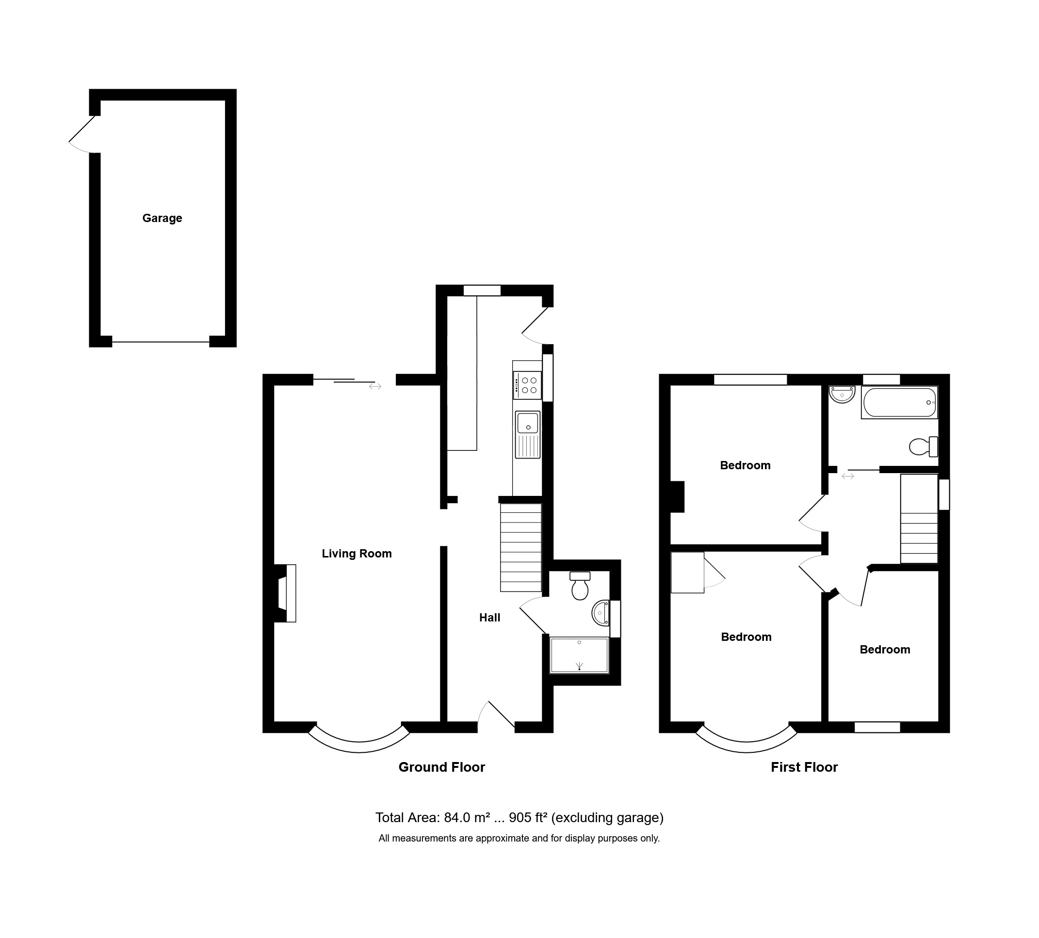
A traditional 1930's double bay fronted semi detached house in need of repair and improvement in a very popular location and set in a large garden. The property is conventionally arranged with an entrance hall leading to a through lounge/dining room, kitchen and wet room downstairs and three bedrooms and bathroom on the first floor. The property is set on a good size plot with a generous width offering great scope for extension (subject to necessary planning consents).
Location and Local Information
Saltford is an excellent strategic location between the cities of Bristol and Bath offering a range of village amenities and excellent local schools, both the village primary school and Wellsway at Keynsham. The cities of Bristol and Bath are
within easy reach by road and public transport.
Accommodation Details
In fuller detail the accommodation comprises (all measurements are approximate):
GROUND FLOOR
Double glazed entrance door to
HALLWAY
Staircase rising to first floor with cupboard beneath. Radiator.
WET ROOM
Double glazed window to side aspect, obsolete fittings of wc,
wash basin and shower.
LOUNGE/DINING ROOM 7.45m into bay x 3.41m (24’5″
into bay x 11’2″)
Double glazed bay window to front aspect and sliding double
glazed patio door to rear garden. Gas fire, radiator.
KITCHEN 4.14m x 1.95m (13’6″ x 6’4″)
Obsolete wall and floor units, stainless steel single drainer
sink unit, gas cooker, wall mounted gas boiler. Double glazed
windows to rear and side aspects and double glazed door to
outside,
FIRST FLOOR
LANDING
Access to roof space, double glazed window to side aspect.
BEDROOM 4.13m into bay x 3.13m (13’6″ into bay x
10’3″)
Double glazed bay window to front aspect, radiator, airing
cupboard with hot water cylinder (included in
measurements).
BEDROOM 3.38m x 3.10m (11’1″ x 10’2″)
Double glazed window to rear aspect, radiator.
BEDROOM 2.53m x 2.29m (8’3″ x 7’6″)
Double glazed window to front aspect, radiator.
BATHROOM 2.26m x 1.52m (7’4″ x 4’11”)
Bath, wc and wash basin. Heated towel rail, double glazed
window to rear aspect.
External Features
GARDEN
The gardens are in an overgrown state with a good size area of garden to the front with a driveway leading to a
DETACHED GARAGE
Sectional concrete construction with an asbestos roof (not
inspected internally). Items remaining in the garage are
included in the sale.
LARGE REAR GARDEN
Backing onto the grounds of Saltford Primary School forming the larger part of the plot, which in total extends to 0.17 acres.
Tenure Information
• Tenure status: Freehold
• Vacant possession
Utilities & Services
• Utilities: Mains electric/water/drainage/Mains Gas
• Heating: Gas Fire & Radiators
• Windows: Double glazed
• Broadband: Prospective buyers should make their own enquiries.
• Mobile coverage: Prospective buyers should make their own enquiries.
Completion
Extended 8 week completion
Viewing Arrangements
To be announced. Please register your interest with City and Rural Property Auctions.
Legal Pack & Due Diligence
The legal pack is (or will be) available to download from our website.
It is expected to include title documentation, special conditions of sale, searches, EPC, tenancy documentation (if applicable), and any other relevant legal information.
We recommend all elements of the legal pack are reviewed by your and your conveyancer before bidding. You are deemed to bid in full knowledge of the contents of the legal pack whether you have reviewed it or not.
Your attention is drawn to the Special Conditions of Sale within the Legal Pack, which detail other charges in addition to the sale price which you may be liable for. These costs may include, but not limited to, Search Fees, reimbursement of Sellers costs and Legal Fees as well as Transfer Costs.
The Legal Pack is available to download, free of charge, via the City and Rural Property Auctions website. By registering for Legal Pack you will be kept up to date of any changes that may occur in the build up to the auction.
Bidders Registration closes on 24th March 2026
You must register to bid to take part in the auction. Registering to bid is very simple, you must visit the City and Rural Property Auctions Website and click on the register to bid button (this feature is not available on Rightmove or Zoopla).
Step 1 – complete the online bidding form (this is the same form if you wish to do telephone or proxy bidding).
Step 2 – Complete the Buyer Details Form and upload proof of ID, Address and Funding.
Step 3 – Pay your security deposit of £6,500 (this places a hold on your debit card and no money will leave your account unless you are the successful purchaser).
Step 4 – you will receive a confirmation email you are ready to bid.
Good luck at the auction! Any outstand deposit balance must be transferred to us within 24 hours of the auction. If you are unsuccessful at the auction the hold on your debit card will be cancelled within 24 hours of the auction, although the exact date will be determined by the issuing bank.
Mortgages and Bridging Finance
There is finance available for virtually every lot, whether that’s a from a high street mortgage lender or from a short-term bridging finance company. We have a team of specialist auction third party mortgage brokers and finance providers that know the ins and outs of auctions, particularly the timescales required to complete, that are on hand to help. Please contact City and Rural Property Auctions for further details. Please note we may receive introductory fees from the broker for this service.
Additional Fees
Administration Charge
Disbursements
EPC Rating: D
Council Tax Band: D
Local Authority: Bath and North East Somerset Council
Tenure: Freehold
Guide Prices & Reserves
Guides are provided as an indication of each seller's minimum expectation. They are not necessarily figures which a property will sell for and may change at any time prior to the auction. Each property will be offered subject to a Reserve (a figure below which the Auctioneer cannot sell the property during the auction) which we expect will be set within the Guide Range or no more than 10% above a single figure Guide.
Additional Fees
Please be aware there may be additional fees payable on top of the final sale price. These include and are not limited to administration charges and buyer's premium fees payable on exchange, and disbursements payable on completion. Please ensure you check the property information page for a list of any relevant additional fees as well as reading the legal pack for any disbursements.
Plans, Maps and Photographs
The plans, floorplans, maps, photograph’s and video tours published on our website and in the catalogue are to aid identification of the property only. The plans are not to scale and should not be relied upon.
Consumer Protection Regulations 2008
City & Rural Property Auctions endeavour to make our sales details clear, accurate and reliable in line with the Consumer Protection from Unfair Trading Regulations 2008 but they should not be relied on as statements or representations of fact, and they do not constitute any part of an offer or contract. All references to planning, tenants, boundaries, potential development, tenure etc is to be superseded by the information contained in the legal pack. It should not be assumed that this property has all the necessary Planning, Building Regulation, or other consents. Any services, appliances and heating system(s) listed have not been checked or tested. Please note that in some instances the photographs may have been taken using a wide-angle lens. The seller does not make any representation or give any warranty in relation to the property, and we have no authority to do so on behalf of the seller.
Anti Money Laundering Regulations.
Intending buyers will be asked to produce identification documentation either as part of the bidder registration process of if they make an acceptable pre-auction offer, we would ask for your co-operation in order that there will be no delay in agreeing the sale.
Should you wish to make a pre or post auction offer, you must complete the form.
Before making your offer you should view the property, review the legal pack and know that if accepted you are entering in a binding contract of sale.
You will be required to pay a 10% deposit, the auctioneer’s admin fee and any search pack fees or buyer premiums as applicable.
Only once contracts have been exchanged will the property be withdrawn from the market.
Your offer will need to be your best bid and typically be at the top end or in excess of the guide price to be considered.
In some instances, it may not be possible to make a pre-auction offer.
Address of the Property you wish to make an offer on
32 Manor Road, Saltford, Bristol, Bath and North East Somerset BS31 3DN
Should your offer be accepted, you will be required to transfer a 10% deposit and all buyers’ fees to the auctioneer.
If you have not viewed the property or the legal pack, your offer is likely to be rejected.









